



















Parallel Circuit Art Center
At the helm of the restoration project, I undertook the task of consolidating the diverse needs and visions of a multidisciplinary team comprising engineers, contractors, artists, and creative directors from the client’s gallery. With a keen understanding of each stakeholder's perspective, I facilitated open dialogue and fostered a spirit of collaboration, ensuring that everyone's input was heard and valued.
Drawing upon my expertise in architecture and design, I orchestrated the fusion of technical requirements, artistic aspirations, and practical considerations into a coherent and innovative plan. Through strategic decision-making and creative problem-solving, we navigated challenges and capitalized on opportunities, transforming obstacles into stepping stones towards our shared goal.
Axonometric drawing of the proposal
In preparation for the restoration, extensive design studies were conducted, involving multiple client meetings to ensure alignment with their vision. We meticulously scanned the old building to obtain precise measurements, providing us with an accurate foundation for our design process.
Custom designing key furniture pieces was a pivotal aspect of the project, allowing us to tailor the space to the specific needs of the gallery and artist residence. By collaborating closely with craftsmen and artisans, we ensured that every piece was not only functional but also complemented the overall aesthetic.
Additionally, sourcing materials and furnishings locally was a conscious decision aimed at supporting the community and reducing our environmental footprint. This approach not only enriched the project with authentic elements but also fostered connections with local suppliers and craftsmen, contributing to the project's overall success.
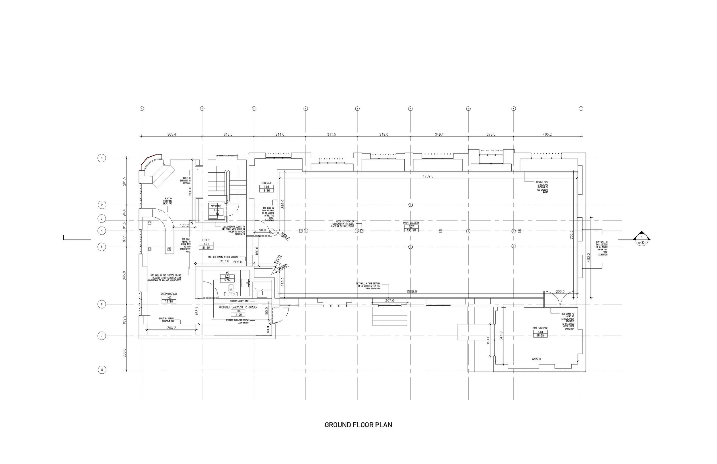
Typ. Construction Plan
With meticulous project management, I guided the team towards the successful realization of our vision, delivering a world-class white cube gallery and artist residence on time and within budget. By seamlessly integrating the expertise and creativity of each team member, we not only breathed new life into a derelict building but also created a dynamic space that continues to inspire and unite communities through art and culture.
Project: Parallel Circuit
Typology: Cultural
Location: Tehran, Iran
Year: 2020-2022
Status: Completed
Client: Dastan Gallery
Team: Nazanin Naeini